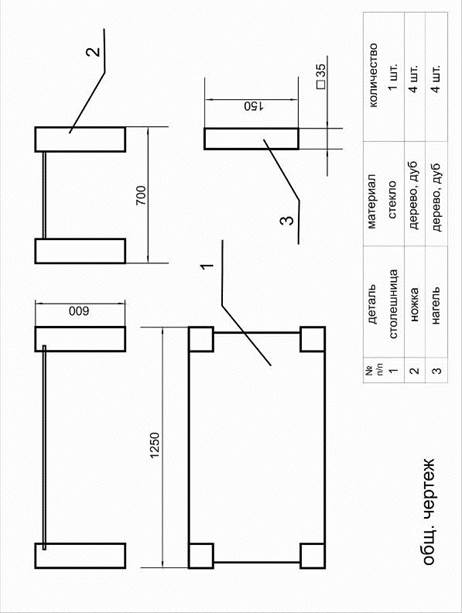
Чертёж столика

Общий чертёж столика

Чертёж ножки столика

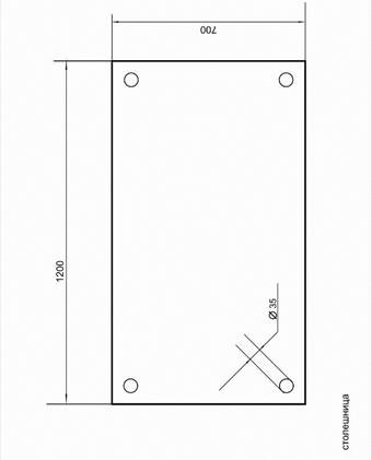
Чертёж столешницы столика

Эргономическое обоснование изготовления столика

Наши отношения с предметным миром не могут быть ограничены любованием эстетическими достоинствами внешней формы. Практическое назначение предметов, обращение с ними требуют своего осмысления. Вопросами проектирования удобных орудий труда, быта, а в целом – созданием комфортной предметно-пространственной среды для самых различных процессов жизнедеятельности человека занимается эргономика.

В её задачи входит всестороннее изучение функциональных особенностей и возможностей человека в процессе его деятельности и взаимодействии с окружающими предметами.

Человек соизмерял создаваемый им предметный мир со своими физическими параметрами и физиологическими возможностями своего организма.

Непосредственно данное изделие – «Журнальный столик», несёт в себе следующие эргономические задачи:

· центральный элемент интерьера, определяющий уют помещения, от которого во многом зависит степень удобства и комфорта в часы отдыха;

· всегда под рукой – не вставая с дивана или кресла, мы можем дотянуться до любимых газет, журналов, книг, пульта от телевизора, а также расставленных на столе фруктов, лёгких закусок, сладостей или напитков;

· столик выручит и во время застолий, превратившись на вечер в сервировочный журнальный стол.

Я считаю что, идя на такой урок и произнося «А сейчас будет урок технологии…» ученик не будет бояться, что ему трудно даётся этот предмет и он опять получит низкий балл. Такой урок поможет внести в обучение технологии – этого непростого предмета радость познания, творческого поиска, уверенность в том, что всё будет понятно, а также интересно и увлекательно, как в детективном романе: Одна глава заканчивается на самом интригующем месте, и все с нетерпением ждут продолжения.

Проведенный мною анализ литературы, показал, что преподавание подобных уроков (самостоятельных практических работ – реализация собственных проектов), эффективно на самом начальном этапе преподавания технологии. Использование подобных нестандартных уроков как нельзя лучше оживляет учебно-воспитательный процесс, повышает интерес к предмету. Ведь очень важно в преподавания предмета, заинтересовать предметом, научить посещать этот урок с жаждой получить новые знания, вести постоянный творческий поиск, открывать в себе скрытые таланты и просто «любить» предмет.

Учителя же могут использовать такие уроки при подготовке открытых уроков, внеклассных мероприятий, они, подтолкнут к поиску новых оригинальных форм и методов обучения, воплощению учителями своих дидактических идей. Такие новые формы работы позволяют реализовать все ведущие функции обучения: воспитательную, образовательную и развивающую на основе идеи педагогики сотрудничества, когда учитель не просто с предметом идёт к детям, а с детьми к предмету.

На мой взгляд, практиковать подобные уроки следует всем учителям, но превращать нестандартные уроки в главную форму работы, вводить их в систему нецелесообразно из-за большой потери времени учителя при подготовке качественного нестандартного урока.

Новости образования:

Виды и методы проверки знаний, умений и навыков по химии
Проверка знаний по дидактическим признакам подразделяется на предварительную, текущую, периодическую и заключительную. По методам – на устную, письменную и экспериментальную (практическую) проверку. Система проверки требует всех четырех ее видов: предварительной, текущей, периодической и заключител ...

Характеристика современных тренировочных программ по увеличению уровня специальной тренированности в предсоревновательный период
В поурочной учебной программе для детско-юношеских спортивных школ по баскетболу предусмотрено распределение часовой нагрузки на все виды подготовки юных баскетболистов. Далее будет рассматриваться распределение учебных часов на учебно-тренировочную группу второго года обучения. Всего по плану пред ...

Неделя иностранного языка как организационная форма внеклассной воспитательной работы
Эта форма по своему характеру является массовой, так как предусматривает участие в ней широкого контингента учеников, а по своей структуре является комплексной, так как включает комплекс разных по смыслу и форме мероприятий, которые происходят в определенный период времени и направлены на реализаци ...

Главное на сайте

Copyright © 2025 - All Rights Reserved - www.focuseducation.ru